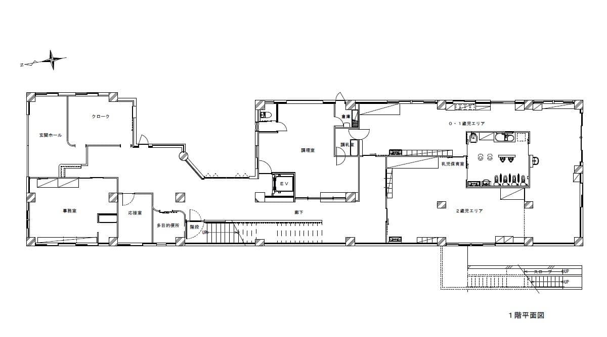
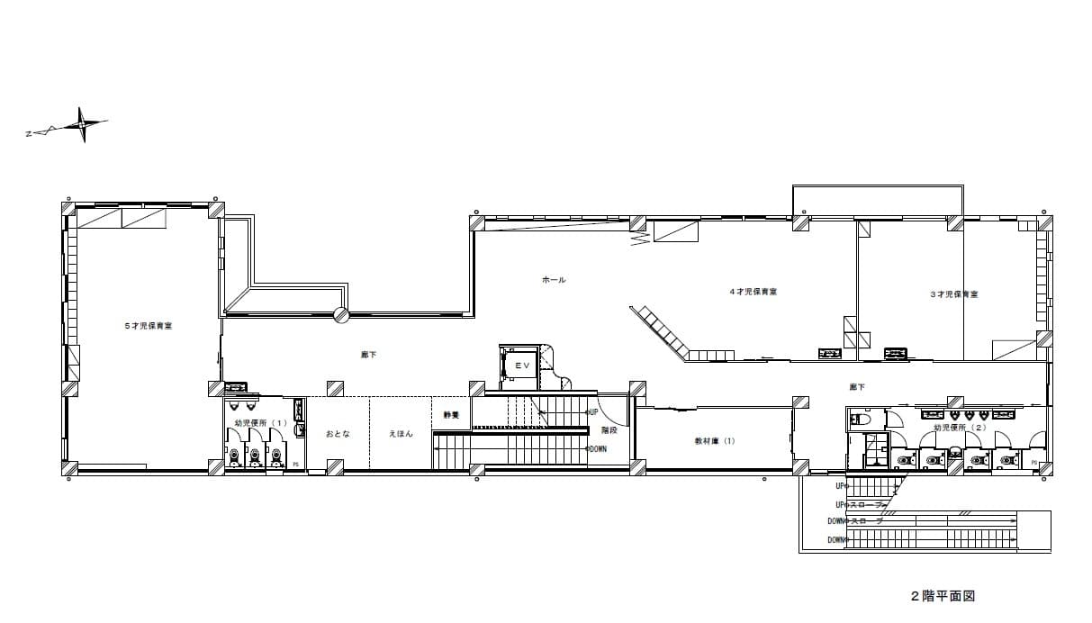
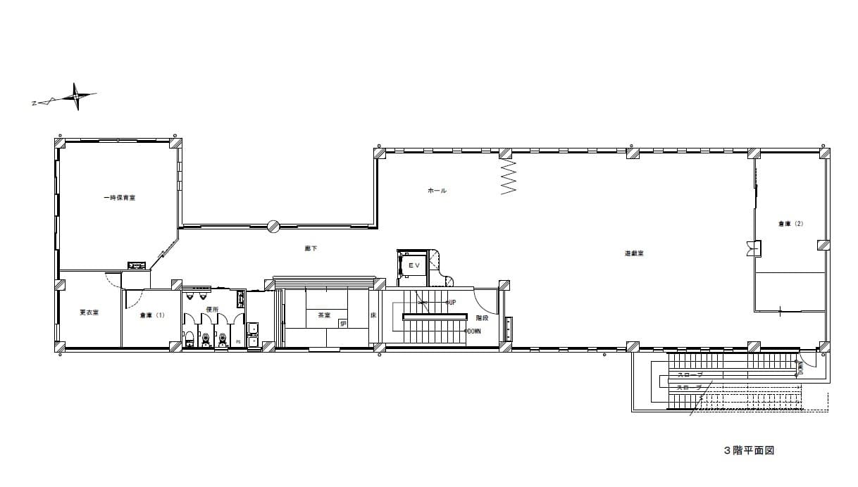
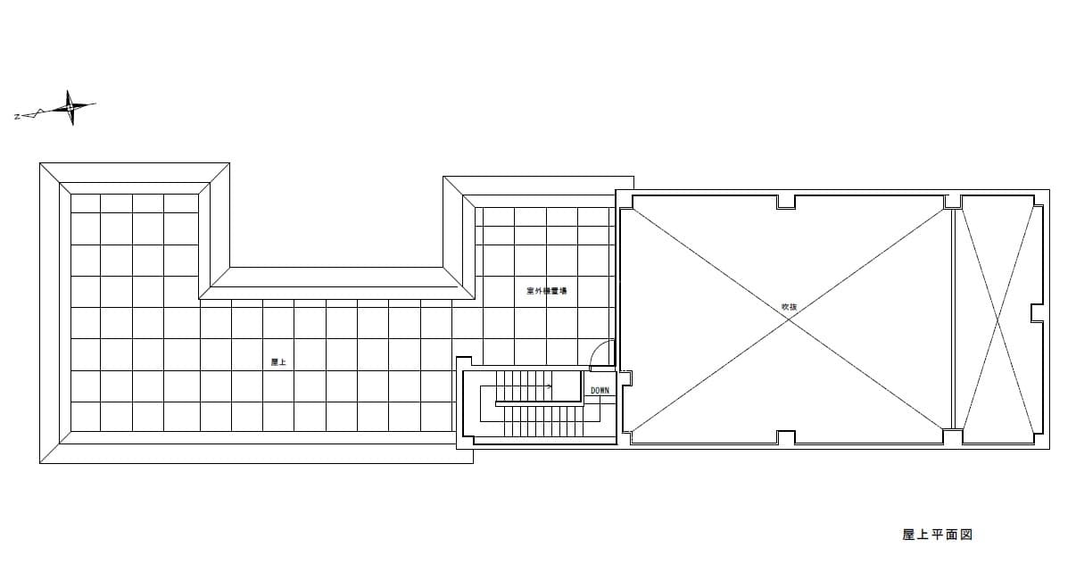
園舎について




2018年に新園舎が完成いたしました。古い園舎を取り壊し、それまで幼児園舎と乳児園舎が別々の建物で別れていたのを一つにまとめました。
広い空間で、のびのびと生活を楽しみ、一人ひとりの可能性を見つけ出せるアイテムの一つである園舎が出来上がったと思っています。これからも変化する園舎であり続けたいと思います。
↓ストリートビューです↓
園舎を散歩してください♪
↓ストリートビューです↓
園舎をお散歩してください♪
園舎の写真
クリックしてください